AU南陽堂ビル ( No.17390 )  (お問合せ先)  - ---
(株)東京オフィスプロジェクト

TEL03-3234-1095
  
本郷三丁目の貸事務所特集No.17390 所在地 文京区本郷1-14-4
交 通 三田線 水道橋駅 徒歩1分 ・
竣 工 1985年  [新耐震]
設 備 光ケーブル
募集条件(税別)
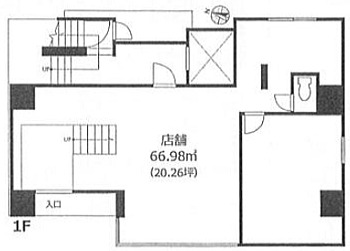
面 積 1階  20.26坪
賃 料 350,000円 (@17,275円)
共益費 0円 (@0円)
月額総額 350,000円 (@17,275円)
保証金・敷金 1,400,000円 (4ヶ月)
償却費・礼金 ・賃料の1ヶ月分
更新料 1ヶ月分
 【コメント】
1階店舗。トイレ以外はスケルトン渡しとなります。飲食は不可。白山通りに面し、駅にも近い好立地物件です。

図面

エントランス・室内など
※賃貸条件は、諸般の状況からのご相談となります。掲載内容と現況が異なる場合は現況優先とします。当物件がご成約済の場合はご容赦下さいませ。



賃貸事務所のお問合わせフォーム 
この物件へのご質問やご要望・ご内見など何でもお申し付け下さい。
勇気・愛情・信頼・希望
貴 社 名  
担当者様
ご 住 所 ビル名
 TEL FAX (FAXを希望の方は記入下さい。)
E-mail  (必須)

 AU南陽堂ビル 1階 20.26坪  ( No.17390 )
 
月額賃料 350,000円 (@17,275円) 保証金 1,400,000円 (4ヶ月)
   (三田線 水道橋駅 徒歩1分)  1985年竣工 [新耐震]
【お問い合わせ事項】 (を入れて下さい。)
賃貸条件について確認したい。条件交渉したい。
この物件を内見したい。
これに似た物件を送ってほしい。
物件選びについて、もろもろ相談したい。
 想定されている貸事務所の面積と月額予算だけご指示下さい。
 面積 
   
 賃料等月額 (ご記入下さい。)

ご要望やご質問をご指示ください。



送信をクリックすると内容が送信されます。



こまかく、ご要望をお伝え頂く場合は、下の「お問い合わせオーダーシート」をご利用下さいませ。
(希望条件をチェックしていくだけの簡単なアンケートフォームです。

本郷三丁目の貸事務所特集 東京オフィスプロジェクト TEL03-3234-1095