日本橋鮒佐ビル
(にほんばしふなさビル)
【お問合わせ先】
(株)東京オフィスプロジェクト

TEL03-3234-1095
話題の日本橋室町、三越前3分のハイクオリテイ賃貸オフィス  2016年4月18日新規
ビル外観 エントランス
1階EVホール
松尾芭蕉 句碑(入口横) 


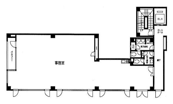
日本橋鮒佐ビル2階平面図

名  称 日本橋鮒佐(ふなさ)ビル
所在地 東京都中央区日本橋室町1−12−13
竣  工 平成5年11月
主要設備 EV 1機・個別冷暖房・機械警備システム・OAフロア光ケーブル・共用部に男女別トイレ
交  通 東京メトロ銀座線・半蔵門線「三越前駅」徒歩3分・JR新日本橋徒歩4分・JR神田徒歩8分
特  色 三越前・中央通りから昭和通りに向って歩いてすぐの所です。再開発の一環で前面道路もレンガ敷きのオシャレな路面にリニューアルされました。ビル自体も充実した設備を兼ね備えたハイグレードなビルです。トイレも部屋外ですので、レイアウトもしやすく、使い勝手のいい貸事務所です。OAフロア・機械警備24時間監視システムなど、現在の先端的な設備が整いながらも、写真にあるように、江戸時代、芭蕉が住んでいた事から句碑も建てられ、歴史も感じる落ち着いた雰囲気の賃貸オフィスビルとなっています。
いろいろと、親切丁寧をモットーにご相談に応じます。よろしくお願い申し上げます。
【募集・賃貸借条件】
面積 賃 料 敷金
2階B室 47.01坪 満室御礼



賃貸事務所お問合わせフォーム 
この賃貸事務所へのご質問やご要望/ご案内のご依頼などなんでも申し付け下さい。
貴 社 名  ご担当者様
ご 住 所 ビル
 TEL  FAX  
E-mail  (メールは必須です)
ご要望
ご質問




そのほかの貸事務所のいろいろなご質問やこんなオフィス探してるなどご要望などもどうぞ。
(場所・面積・ご予算・設備など)

こまかく、要望をお伝えいただく場合は、
「お問い合わせオーダーシート」をご利用いただくと便利です。

送信ボタンを押すと確認画面が出ます。
(株)東京オフィスプロジェクト
 TEL 03−3234−1095 お電話でもどうぞ。
東京オフィスプロジェクト貸事務所情報へ 貸事務所のご要望・ご相談は、メールでもOKです。ご利用下さいませ。