カーザベルソーレ ( No.3171 ) (お問合せ先)
(株)東京オフィスプロジェクト
TEL 03-3234-1095
 ■ 窓明かりがお洒落な印象のイタリア街のオフィスビルです!
新橋・虎ノ門の貸事務所特集No.3171の賃貸事務所 外観写真 ビル名 カーザベルソーレ
所在地 港区東新橋2-16-3
交 通 JR「新橋」徒歩8分・大江戸線「汐留」徒歩5分
竣 工 2003年 [新耐震]
設 備 ※別途室内清掃契約 OAフロア 光ケーブル 機械警備
募集条件(税別)
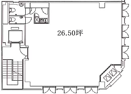
面 積 7階 26.50坪
賃 料 ご相談
共益費 ご相談
月額総額 ご相談
保証金・敷金 ご相談
償却費・礼金 ・なし
更新料 1ヶ月分
【コメント】
汐留SIOサイト5区イタリア街の物件です。イタリアの街並みにある建物の四角い窓が整列しているデザインがとてもお洒落に映ります。街並みがイタリアンコンセプトで統一された美しい日本でも珍しいエリアです。

図 面
新橋・虎ノ門の貸事務所特集No.3171の賃貸事務所エントランス・貸室写真
エントランス・室内など
※賃貸条件は、諸般の状況からのご相談となります。掲載内容と現況が異なる場合は現況優先とします。当物件がご成約済の場合はご容赦下さいませ。
大きな地図や周辺環境などはこちら (google street view でもご覧ください。)

賃貸オフィスの事なら(株)東京オフィスプロジェクトへご相談下さいませ。
東京都千代田区三番町20-2
TEL:03-3234-1095 E-mail:info@bldg-station.com


賃貸事務所のお問合わせフォーム 
物件へのご質問やご要望・現地ご内見など何でもお申し付け下さい。
勇気・愛情・信頼・希望

貴 社 名  
担当者様
ご 住 所 ビル名
 TEL FAX (FAXを希望の方は記入下さい。)
E-mail  (必須)

3171賃貸事務所ミニ外観写真
 カーザベルソーレ 7階 26.50坪  ( No.3171 )
 
港区東新橋2-16-3

 月額賃料
ご相談 保証金 ご相談
   
 (JR「新橋」徒歩8分) 2003年竣工 [新耐震]
【お問い合わせ事項】 (を入れて下さい。)
物件の空室確認をしたい。
賃貸条件について確認したい。条件交渉したい。
この物件を内見したい。
これに似た物件を送ってほしい。
物件選びについて、もろもろ相談したい。
想定されている貸事務所の面積と月額予算をご指示下さい。
 面 積   
 賃料等月額
(数字や範囲をご記入下さい。例50,50~60)

ご要望やご質問をご指示ください。



送信をクリックすると内容が送信されます。

こまかく、ご要望をお伝え頂く場合は、下の「オーダーシート」をご利用下さいませ。
(希望条件をチェックしていくだけの簡単なアンケートフォームになっています。
新橋・虎ノ門の貸事務所特集 東京オフィスプロジェクト TEL03-3234-1095
-- 特集ページ --
汐留シオサイト5区
イタリア街オフィス
これぞ!エグゼクティブ
SOHOオフィス
感性を刺激する
デザイナーズ系オフィス
ステータス重視!
ハイグレードオフィス
超高層ビルに見つけた
10〜100坪オフィス
サービスオフィスという選択!
超高層ビルにオフィスを。

JR「新橋」徒歩8分|26.50坪の賃貸事務所情報