時事通信ビル ( No.17759 )

銀座の貸事務所特集  47.90坪


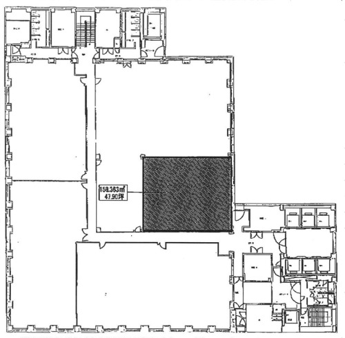
図面


エントランス・室内など

所在地 中央区銀座5-15-8
交 通 銀座線 銀座 徒歩 7分 ・日比谷線 東銀座 徒歩 2分
竣 工 2003年  [新耐震]
設 備 OAフロア 光ケーブル
募集条件(税別)
面 積 9階  47.90坪
賃 料 ご相談
共益費 ご相談
月額総額 ご相談
保証金・敷金 ご相談
償却費・礼金 ・なし
更新料
【コメント】
2003年竣工・1フロア300坪の分割貸室です。ハイセンスな稀少価値の高いオフィス物件です。



このページを自分のPCにメールで送る。
(あとで見る
・・PC用ページが表示されます。)
この物件へのご質問やご要望・ご内見など
何でもお申し付け下さい。

貴 社 名

お名前

電話番号

E-mail(必須)
■お問合わせ・ご要望 (を入れて下さい)
時事通信ビル 時事通信ビル 47.90坪
 賃料等月額
 ご相談
 2003年竣工 [新耐震]
賃貸条件などについて確認したい。
この物件を内見したい。
これに似た物件を送ってほしい。
物件選びについて、もろもろ相談したい。

ご要望やご質問をどうぞ。

想定の面積ご指示下さい。
 5〜10坪 10〜15坪 15〜20坪
20〜25坪 25〜30坪 30〜40坪
40〜50坪 50〜60坪 60〜70坪
70〜80坪 80〜100坪 
-----------------------

賃料:月額

(ご記入下さい。)

送信をタップすると内容が送信されます。

東京都知事(5)第76338号
株式会社 東京オフィスプロジェクト
東京都千代田区三番町20-2
 TEL03-3234-1095
 
お気軽にお電話でもお問合せ下さい。

東京オフィスプロジェクト貸事務所情報へ 貸事務所のご要望・ご相談は、メールでもOKです。ご利用下さいませ。
銀座の貸事務所特集




この物件の
問い合わせ

送信をタップすると
内容が送信されます
探している物件
情報をオーダー